Ristrutturazione e cambio destinazione d’uso: da pizzeria a negozio di ottica a Casalmaggiore
L’immobile oggetto dell’intervento è parte di un complesso commerciale composto da due edifici situato su via della Repubblica a Casalmaggiore (CR), in una posizione strategica grazie alla viabilità primaria che collega le province di Parma, Cremona e Mantova.
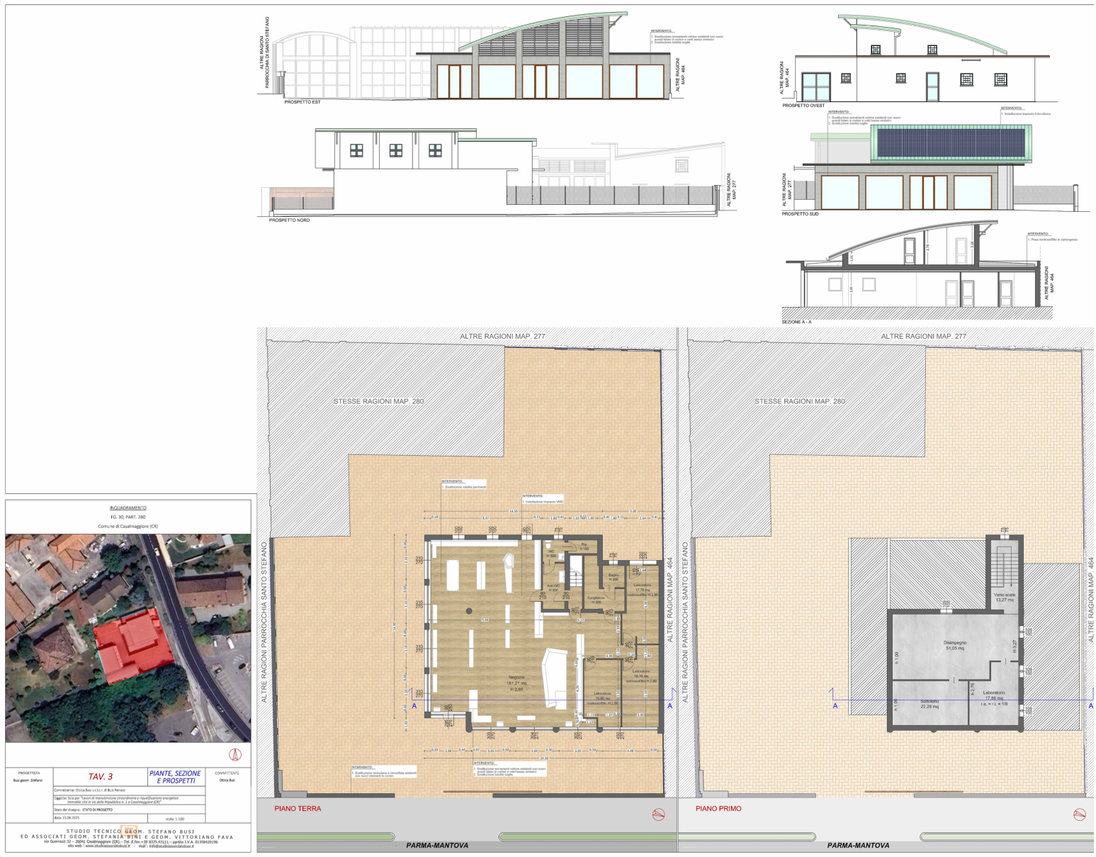
Il progetto prevede la manutenzione straordinaria e la riqualificazione completa dei locali, precedentemente adibiti a pizzeria, con trasformazione in negozio di ottica moderno e funzionale.
DESCRIZIONE DELL’INTERVENTO:
L’intervento prevede la sostituzione di tutte le finiture e soprattutto la rimodulazione dell’edificio dal punto di vista energetico, nonchè la demolizione e costruzione di pareti divisorie interne in cartongesso per la creazione di laboratori e spazi per visite oculistiche e ampio spazio espositivo.
All’interno del locale verrà posato l’impianto di riscaldamento a pavimento e verrà realizzato un controsoffitto in cartongesso a 2,85 mt di altezza.
Le attuali vetrine verranno ridimensionate a 2,80 mt e sostituite con nuovi telai in corten e vetro maggiormente performante.
Tutti gli ambienti verranno dotati di ventilazione meccanica controllata (VMC).
Le opere interne oggetto della pratica edilizia consistono in:
1. Demolizione pavimenti esistenti;
2. Demolizione pareti in cartongesso
3. Costruzione di pareti in cartongesso per nuova distribuzione interna;
4. Sostituzione vetrine esistenti in alluminio con infissi in ferro e vetro;
5. Riqualificazione bagni esistenti;
6. Fornitura e posa porte interne;
7. Controsoffitto in lastre di cartongesso per l’abbassamento a mt. 2,85 da terra;
8. Nuovi pavimenti in parquet e resina;
9. Tinteggiature;
10. Impianto di riscaldamento e raffreddamento a pavimento;
11. Impianto VMC;
12. Impianto elettrico;
13. Impianto fotovoltaico;
14. Rifacimento cancellata.
L’intervento è nato per la necessità di rendere più fruibile l’accesso al negozio di ottica da parte dei clienti. Ovviamente la nuova posizione godrà del parcheggio Conad e del parcheggio comunale realizzato dal comune di Casalmaggiore, oltre che di una visibilità eccezionale grazie all’adiacente e trafficatissima strada statale 343 Asolana.
L’ampio negozio, che sarà all’avanguardia per la tecnologia utilizzata nel campo dell’ottica, assumerà un aspetto interno futurista e iper-moderno ma comunque super accogliente.
La sostituzione di tutte le vetrine, la posa di un importante impianto fotovoltaico ed il rifacimento di tutti gli impianti di climatizzazione permetteranno al cliente di raggiungere un ottimo comfort lavorativo nel rispetto della legge. Ovviamente l’immobile sarà alimentato esclusivamente dal sopra citato impianto fotovoltaico a scopo di utilizzare come unica fonte energetica la corrente elettrica.
Settembre 22, 2025
